通風與空調工程施工工藝的實例解讀,全面!
基于工程實例,從以下幾方面全面解讀通風與空調工程施工工藝:
①空調風系統施工工藝流程
②風管制作工藝
③風管安裝工藝
④風機安裝工藝
⑤空調水系統安裝
⑥風管實驗
⑦末端安裝
空調風系統施工工藝流程

風管制作工藝
· 風管制作流程

· 風管選型
根據施工現場具體情況,采用角鋼法蘭、共板法蘭和插條式連接三種工藝連接或者聯合使用。工藝及風管邊長劃分、風管鋼板厚度如下:


· 風管樣品制作
樣品先行
在風管加工前,應該預先對風管進行編號預排布,合理布置開風口、三通、支架等部位管段長度;風管各種標準件提前制作樣品,大面積施工按樣品標準制作。

風管加工與施工過程中應注意成品保護,風管起筋、咬口、翻邊加工后產品垂直堆放,防止變形。

· 風管制作
法蘭細節要點
① 風管法蘭平整,焊縫飽滿,無缺口。
② 風管法蘭鐵皮翻邊量大于6mm,小于9mm;翻邊緊貼法蘭,平整、無翹起,風管四角鐵皮重疊處鏟平無豁口,打膠嚴密。

③ 共板法蘭風管四角制作豁口應該打膠嚴密,打膠應該抹平整,不出現堆疊現象。


銜接要點
金屬鋼板風管法蘭螺栓連接螺栓孔間距應均勻,四角應有螺栓孔,送排風與空調系統風管孔距為120mm,防排煙風管孔距為80mm;螺栓孔朝向應一致。

共板法蘭風管法蘭卡應無毛刺、規格一致、鐵皮厚度與尺寸應滿足圖集要求;法蘭卡應該一正一反安裝,便于更好受力,相鄰法蘭卡邊緣間距為80mm。

風管安裝工藝
· 吊架安裝
風管吊架要點
風管水平安裝,直徑或邊長≤400mm,吊架間距應≤4m;直徑或邊長>400mm,吊架間距應≤3m。吊桿離風口及其他部件距離應大于200mm;
風管末端吊架離風管距離應不大于1000mm(一般控制在200mm)。

當水平懸吊的主、干風管長度超過20m時,應設置防止擺動的固定點,每個系統不應少于1個。

· 風管封堵
風管封堵要點
風管穿越防火墻應設有鋼板厚度1.6mm及以上的套管。套管內部應用玻璃棉等不燃材料封堵,外面用防火泥抹面。


· 風管部件安裝
防火閥和條形散流器安裝
① 防火閥應安裝在順氣流方向一側,離墻距離不超過200mm。
② 大于630mm的防火閥需設獨立吊架。吊架設置不能影響防火閥執行機構動作,應采用在防火閥頂部設置吊耳的方法。

風管底部連接條形散流器應設短管,若設置在風管側面則短管上應設置獨立吊架。

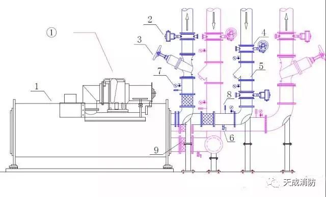
風機安裝工藝
· 風機安裝
落地式風機安裝
設備基礎必須經過交接驗收,其大小、平整度應滿足設備安裝要求。風機與基礎接觸處應有橡膠減振墊或彈簧減振器等減振措施,且減振電或彈簧應考慮動荷載。

吊掛式風機安裝
吊掛式風機安裝如果風機頂部離樓板距離小于300mm,采用圓鋼吊桿上設彈簧減振器,減振器應設置于風機頂部以上位置,吊桿與風機外殼應有50-100mm的距離。若大于300mm,采用角鋼或者槽鋼制作防晃式吊架框。

· 風機連接
柔性短管安裝
空調風機與風管應采用柔性短管連接,兩邊法蘭應同軸平行、不錯位,短管長度為150mm-300mm。柔性短管采用綠色防水、防塵、防霉、阻燃功能的帆布。

排煙風管的柔性短管,應采用桔紅色消防專用不燃帆布,長度150mm-300mm。

· 風機設備接地
風機與風管連接
室外風機軟接與風管之間應做跨接處理,跨接線應該為卷圈軟線。

風機基礎、設備本身、套管均應采用軟線接至接地扁鋼。

空調水系統安裝
· 空調水系統組成
典型中央空調機組主要由冷凍水循環系統、冷卻水循環系統及主機三部分組成:

· 管道焊接流程

· 管道焊接
焊接要點
坡口機開口,標準美觀;坡口氧化層與雜質打磨干凈,坡口根部留有3mm縫隙,便于焊透,管道組對平直,無錯邊,開完坡口后要及時焊接。

焊縫成直線、表面平整無焊瘤、咬肉、凹陷和飛濺。焊接完成后及時處理焊縫。平焊法蘭片焊接應采用雙面焊,焊縫平整飽滿。

· 風機盤管安裝
風機盤管安裝
風機盤管盡量貼近樓板水平安裝,頂部留出100mm以上空間操作與檢修即可。便于管道系統排氣泄水以及冷凝水坡度要求。風機盤管安裝應該注意在前后與下部留出送回風管與風口安裝空間。

供水管依次為球閥(閘閥)-過濾器依次為球閥(閘閥)-過濾器-金屬軟管。回水管閥門及部件依次為球閥(閘閥)-電動二通閥-金屬軟管。所有閥門的閥柄不得朝下,電動二通閥應垂直向上安裝。

· 制冷機組安裝
制冷機組安裝
冷水機組常規接管圖:1-冷水機組,2-電動閥,3-平衡閥,4-蝶閥,5-Y 型過濾器,6-泄水閥,7-壓力表,8-溫度計,9-軟接頭。

在彈簧減震器下部設置水平度調整鋼板,便于設備一次就位 。機組找平可根據設備的具體外型選定測量基準面,用水平儀測量,擰住地板上的螺栓進行調整,機組縱向、橫向的水平偏差均不大于1/1000。

· 冷卻塔安裝
冷卻塔基礎尺寸標高、強度均應滿足要求基礎高度按管道安裝要求而定。基礎經過找平找正后安裝減振裝置,減震裝置與設備及基礎螺栓固定。

冷卻塔處于太陽暴曬的冷卻水管可根據當地氣象條件建議設計變更,保溫后做保護殼,保護管道,提高制冷機組效率。

· 管道及設備保溫
管道保溫
保溫材料表面平整、清潔、密實、相貫線流暢美觀。閥門及各類部件單獨保溫,便于拆卸維護,管道標識清晰。

風管實驗
1、漏光試驗:風管系統安裝完成后,進行風管漏光檢測。在夜晚進行,手持移動光源可采用不低于100w帶保護罩的低壓照明燈,或其他低壓光源,光源可置于風管內側或外側,但其相對側應為暗黑環境。檢測光源應沿著被檢測接口部位與接縫做緩慢移動,在另一側進行觀察,當發現有光線射出,則說明查到明顯漏風處,并應做好記錄,并填寫《風管漏光檢測記錄》。
2、風管漏風檢查:中壓系統風管的嚴密性檢驗,應在漏光法檢測合格后,對系統漏風量測試進行抽檢,抽檢量為20%,且不得小于1個系統。漏風量測試裝置應采用經檢驗合格的專用測量儀器并填寫《風管漏風檢測記錄》。
末端安裝
吊頂板上煙感、噴頭、風口及燈具安裝均勻合理的布局。

燈具、風口、噴灑頭合理布置。

海灣消防安全有限公司主營:GST海灣消防報警設備銷售,消防工程施工改造,氣體滅火、電氣/漏電火災、消防水系統施工安裝,售后維修保養,檢測,調試,海灣消防網站:http://www.fnyjr.cn/;海灣消防服務熱線:4006-598-119
本頁關鍵詞:
上一篇:通風系統、防排煙系統工藝 下一篇:【干貨分享】消火栓管道工程手算方法


蘇公網安備32058102002148號